Quadrilocale in vendita

Roma, Via Romolo Balzani - Villa De Sanctis
€ 195.000
4 locali 4 locali
115 Mq 115 Mq
2 bagni 2 bagni

Quadrilocale in vendita

Roma, Via Romolo Balzani - Villa De Sanctis

Descrizione annuncio

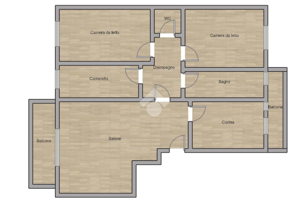
NUDA PROPRIETÀ – QUADRILOCALE CON BALCONI, CANTINA E POSTO AUTO – COMPRENSORIO “LE MUSE”, VILLA DE SANCTIS

All’interno del richiesto comprensorio “Le Muse”, nel quartiere Villa De Sanctis, si propone in vendita una NUDA PROPRIETÀ con unica usufruttuaria di 78 anni.
Lo stabile è appena stato ripulito nelle parti comuni, è servito da ascensore e gode di una posizione tranquilla e ben collegata. L’appartamento presenta una doppia esposizione aperta e molto luminosa.

L’immobile è composto da:
- ampio ingresso
- salone
- tre camere da letto
- cucina abitabile di circa 12 mq
- due bagni, di cui uno con finestra e comoda doccia walk-in
- pratico armadio a muro nel disimpegno
- due balconi vivibili, uno in corrispondenza del salone e uno a servizio della cucina

Il riscaldamento è autonomo e l’appartamento si presenta in condizioni discrete e personalizzabile con eventuali lavori di ammodernamento secondo le proprie esigenze.

Completano la proprietà:
- una cantina di pertinenza
- la possibilità di parcheggiare all’interno di due aree di parcheggio condominiali non assegnate, a riempimento, entrambe delimitate da cancello elettrico.

Questa soluzione rappresenta un’ottima opportunità di investimento:

il prezzo richiesto per la nuda proprietà è sensibilmente inferiore al valore di mercato dell’immobile libero, consentendo di acquistare un ampio quadrilocale in un contesto residenziale molto apprezzato, con una prospettiva interessante nel medio-lungo periodo.

Ideale per chi cerca un investimento sicuro nel tempo in una zona servita, ben collegata e con tutte le principali comodità a portata di mano.

Mostra tutto

Nelle vicinanze

Trasporto pubblico Trasporto pubblico
Mirti
Mirti
910 m
Gardenie
Gardenie
950 m
Balzani
Balzani
350 m
Berardi
Berardi
640 m
Balzani
Balzani
320 m
Ricariche auto elettriche Ricariche auto elettriche
Eneldrive Autorimessa Primula
550 m
Esselunga Prenestino
2,6 Km
Roma Appia | EnelX
2,7 Km
Scuole Scuole
Scuole
730 m
scuola elementare Fausto Cecconi
760 m
scuola elementare Renzo Pezzani
940 m
I.I.S.S. Giorgio Ambrosoli - Sede associata I.P.S.I.A. Europa
960 m
Scuola Primaria "Carlo Pisacane"
1,1 Km
Farmacia Farmacia
Farmacia
50 m
Farmacia Dr. Eletti
710 m
Alessandrina
860 m
Ortopedia Ronconi
1,0 Km
Farmacia San Luca
1,2 Km
Ospedali Ospedali
Ospedali
700 m
Istituto delle Figlie di San Camillo - Ospedale M. G. Vannini
1,1 Km
Pronto Soccorso Ospedale "Madre G. Vannini"
1,1 Km
NCL
1,9 Km
A.S.L. Roma C
2,2 Km
Supermercati Supermercati
Eurospin
320 m
Conad City
780 m
Tuodì Camelie
790 m
Todis
980 m
Fresco Market
1,1 Km
Negozi Negozi
Acqua e farina
730 m
Orian intimo
800 m
Sonya e Giò
810 m
Magazzini Gianni
1,1 Km
Gram Bangla
1,2 Km
Bar Bar
Black Out Rock Club
240 m
Bar
340 m
Pecchia
750 m
Bar Tong
1,0 Km
Bar Roma
1,1 Km
Ristoranti Ristoranti
Habituè Music Restaurant
240 m
Proloco DOL
640 m
Buone Maniere
650 m
180g Pizzeria Romana
680 m
Pizzeria Romana
690 m
Mostra tutto

Caratteristiche

Rif.:
61179940
Piano:
5 di 5 con ascensore (Piano medio)
Balconi:
2
Camere da letto:
3
Arredamento:
Assente
Condizionamento:
Autonomo
Mostra tutto
Prezzo Prezzo
€ 195.000
Rata mutuo Rata mutuo
€ 924 / mese
Spese annue Spese annue
€ 1.200
Proponi il tuo prezzoProponi il tuo prezzo

Classe Energetica

G
G
G
G
G
G
G
G
G
EP globale non rinnovabile:
175.00 kW h/m² anno
EP globale rinnovabile:
0.00 kW h/m² anno
EP invernale del fabbricato:
EP estiva del fabbricato:
Anno di costruzione:
1980
Riscaldamento:
Autonomo
Tipo impianto:
A radiatori
Tipo alimentazione:
Metano

Ti interessa visionare l'immobile?

Fissa un appuntamento  Fissa un appuntamento

Richiedi informazioni

Clicca su Leggi per aprire l'informativa
* Questi campi sono obbligatori

Calcola il tuo mutuo

Semplice e senza impegno
Anticipo

( % )
Mutuo

( % )

pochi semplici passi

inserisci i tuoi dati
Questionario completato
Grazie per aver richiesto un appuntamento senza impegno con un nostro Consulente del Credito e Assicurativo.

Hai inserito correttamente tutti i dati necessari e a breve riceverai una e-mail con un link da convalidare per inviare i tuoi dati.
Affiliato
Immobiliare 23 Srls
Via Francesco Ferraironi, 86 00177 Roma (RM)

Il nostro staff


  • Fabio Cosentino
    Affiliato
Via Francesco Ferraironi, 86 00177 Roma (RM)
Zona: Centocelle - Villa de Sanctis
Mostra su mappa
Orari: lunedì-venerdì 9.00-13.10 / 15.30-20.10 sabato 9.00-13.10 / 15.00-19.00 domenica su appuntamento
Affiliato
Immobiliare 23 Srls
Via Francesco Ferraironi, 86 00177 Roma (RM)

2026 Tecnocasa Franchising S.p.A. - P. IVA 08365160152 - Via Monte Bianco 60/A 20089 Rozzano (MI). Ogni agenzia ha un proprio titolare ed è autonoma. Privacy policy | Policy utilizzo | Cookie policy